Individuální a typové projekty domů od našeho vzniku roku 2001

Typové projekty rodinných domů

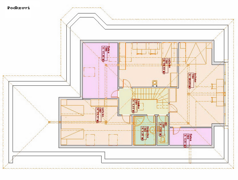
Na této stránce představujeme typové projekty rodinných domů. Typové projekty rodinných domů mohou také sloužit jako inspirace pro zhotovení individuálního projektu domu. Po dohodě s investorem provádíme také změny typových projektů. Více informací

Informace ke zpracování individuálních projektů. Výběr domů, kde jsou pouze typové bungalovy - typové projekty bungalovů a typové vícepodlažní domy - typové projekty vícepodlažních domů

Některé ukázky realizací: cihlové domy,  dřevostavby.

PROZI 121

 

PROZI 106

 

PROZI 108

 

PROZI 117

 

PROZI 118

 

PROZI 119

 

PROZI 125

 

PROZI 129

 

PROZI 130

 

PROZI 131

 

PROZI 149

 

PROZI 150

 

PROZI 154

 

PROZI 156

 

PROZI 157

 

PROZI 160

 

PROZI 161

 

PROZI 167

 

PROZI 170

 

PROZI 172

 

PROZI 184

 

PROZI 200

 

PROZI 206

 

PROZI 208

 

PROZI 240

 

PROZI 248

 

Typové projekty rodinných domů - informace k popisům:

Ceny typových projektů jsou konečné, ale u některých typových projektů je potřeba provést aktualizaci dle současných norem a tím dojde k navýšení ceny (bude sděleno podle konkrétního domu). Cena typového projektu je v rozsahu pro povolení stavby. Ceny staveb jsou pouze orientační bez DPH v realizaci svépomocí. K ceně je potřeba připočíst některé aktuální výkyvy cen stavebních materiálů. Celková cena stavby se může lišit a to v závislosti na základových poměrech, vybavení domu a na realizační firmě (jaké má firma ceny stavebních prací a v jaké míře přistoupí na nabízené slevy stavebních materiálů). U staveb realizovaných svépomocí možno dosáhnout o 20-30% nižších cen. Hrubá stavba cihlového domu zpravidla obsahuje.

Typové projekt obsahuje detaily omezující tepelné mosty (v místě soklu, oken, překladů, železobetonových věnců, pozednice a kleštiny nebo v místě vazníků). Neobsahuje projekt situaci osazení na pozemku s napojením na inženýrské sítě , který možno u nás také objednat. Také je potřeba aktualizovat projekty profesí. Dispozice typových projektů se může lišit. V případě požadavků vyprojektujeme i úpravy typového projektu rodinného domu. Individuální projekty - informace. Další informace k projektové dokumentaci (typové domy, individuální) naleznete zde.

Ukázky zrealizovaných projektů:

ukázky realizací některých cihlových domů

ukázky realizací některých montovaných domů- dřevostaveb

Pro bližší informace nás prosím kontaktujte, telefon – 777 163 465, email – info@prozi.cz.

 
 

2001-2026(©) Prozi Projekt

Úvod|Typové projekty|Realizace|Montované domy|Ceny projektů|Kontakt|Změna cookie souhlasu